Espace commercial à louer - À louer

Numéro de l'annonce 7758
ID N/D
Prix 24,00$/ pied carré
Pièces 2
Type Fond de commerce
Catégorie N/D
Taille du lot 2 760,00pi2
Année de construction -
Superficie 2 760,00pi2
Étages 1
Stationnement -
Sous-location? Non

Description

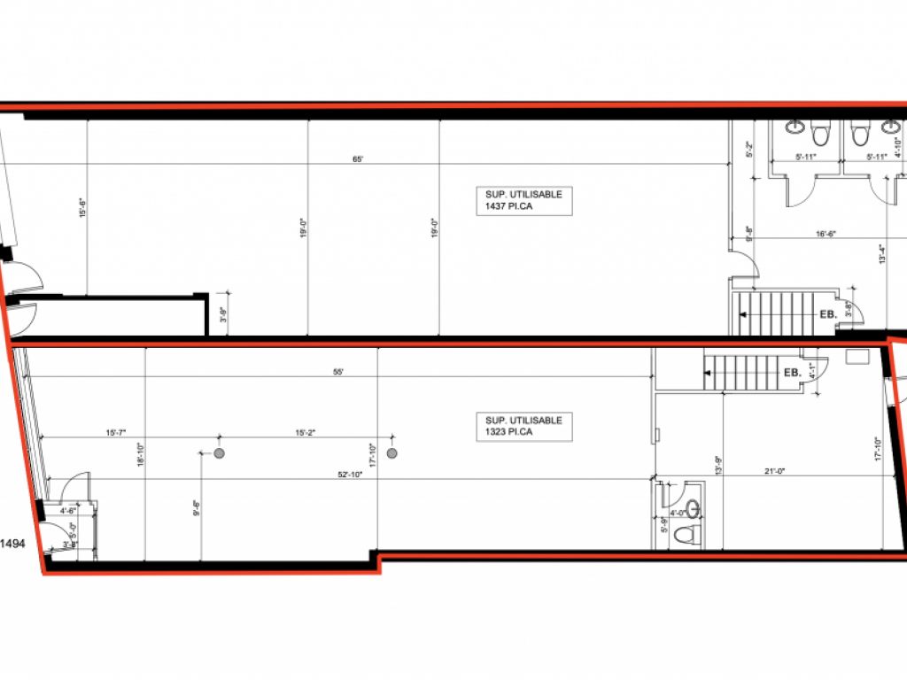
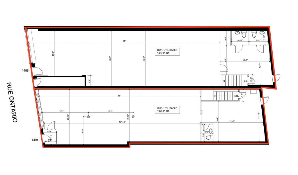
Grande superficie commerciale de 2760 pi.ca.
Actuellement divisée en deux locaux distincts (A & B), pouvant facilement être combiné.

Local A : 1437 pi.ca
Situé au 1488 rue Ontario, est une ancienne taverne ayant été insonorisée et rénovée pour
augmenter la capacité de l'ancien permis d'alcool. Ce local comprend deux salles de bain
rénovées, un système central de ventilation (CVC) et un sous-sol pleine hauteur, également
récemment rénové. Il offre un accès arrière via le stationnement privé pour la livraison et la
possibilité d'avoir une terrasse en façade.

Local B : 1323 pi.ca
Situé au 1494 rue Ontario, est un ancien restaurant ayant été entièrement rénové par
l'ancien locataire avec plus de 200 000 $ d'investissement dans les lieux. Le local comprend
de nouvelles salles de bain, une nouvelle hotte de cuisson, un système de climatisation
(thermopompe X2) et un réaménagement du sous-sol et de l'espace de travail (back store).
Notez que les équipements en place ne sont pas tous inclus dans la location (à discuter).

Quartier / Ville Marie:
Située dans un quartier dynamique à proximité de plusieurs entreprises bien connues,
notamment McDonald, Subway, Rona, Pharmaprix, Bar La Grenade et la station Esso.
Le trafic routier et piétonnier y est très achalandé grâce à la proximité du Pont Jacques-
Cartier reliant Longueuil à la Rive-Sud et à l'île de Montréal.

Disponible immédiatement pour la location.

Terme : 5 ans / 10 ans
Loyer net : 24,00 $ par pi.ca
Loyer additionnel : 11,00 $ par pi.ca
Électricité / Gaz : Aux frais du Locataire