Local commercial au cœur du mile end pour restaurateur - À louer
| Numéro de l'annonce | 8599 |
|---|---|
| ID | N/D |
| Prix | 18,00$/ pied carré |
| Pièces | 0 |
| Type | Commerce (rue) |
| Catégorie | N/D |
| Taille du lot | - |
|---|---|
| Année de construction | - |
| Superficie | 6 415,00pi2 |
| Étages | 0 |
| Stationnement | - |
| Sous-location? | Non |
| Fiche 1 | Télécharger |
|---|
Description
Faits saillants
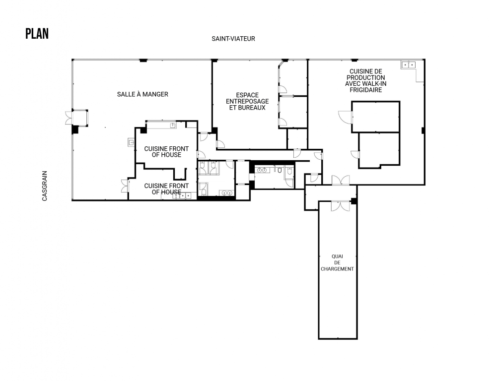
Idéalement situé au 160 rue Saint-Viateur Est, voisin du Frank and Oak, au coin de l’avenue Casgrain, ce local commercial, anciennement utilisé comme restaurant, est entièrement équipé. Il comprend une cuisine de production située stratégiquement à l’arrière, adjacente à un quai de chargement, offrant une configuration idéale pour des opérations culinaires efficaces.
Avec sa terrasse extérieure et son emplacement stratégique, cet espace est conçu pour attirer une clientèle variée et fidèle composée de résidents, de professionnels locaux et de touristes.
C’est une occasion idéale pour un restaurateur souhaitant exploiter une cuisine centrale pour approvisionner plusieurs points de vente et ouvrir une nouvelle succursale au cœur du Mile End.
Ce local combine praticité, flexibilité et un fort potentiel de croissance, tout en s’intégrant à l’atmosphère vibrante et créative de ce quartier en pleine effervescence.
L’adresse est facilement accessible grâce aux transports en commun et dispose d’un stationnement souterrain.
Sa proximité avec les principales artères de la ville en fait un emplacement stratégique pour répondre à la demande culinaire des employés des grandes entreprises voisines telles que Ubisoft, le Carré de Gaspé et Frank and Oak.
Détails de la propriété
Loyer net : 18.00 $ / pied carré
Frais additionnel : 2.05 $ / pied carré (estimé 2025)
Date de disponibilité : Maintenant






