Espace industriel à louer - À louer

Numéro de l'annonce 8601
ID N/D
Prix -
Pièces 0
Type Espace industriel
Catégorie N/D
Taille du lot -
Année de construction -
Superficie 3 150,00pi2
Étages 0
Stationnement EXT
Sous-location? Non

Description

Faits saillants

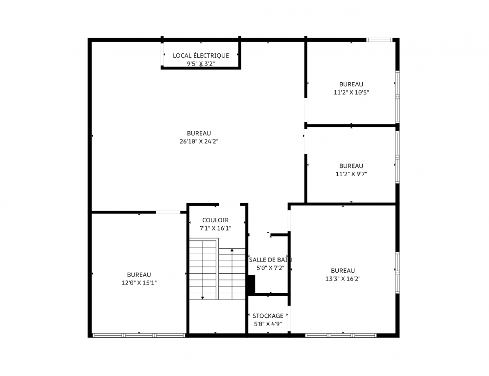
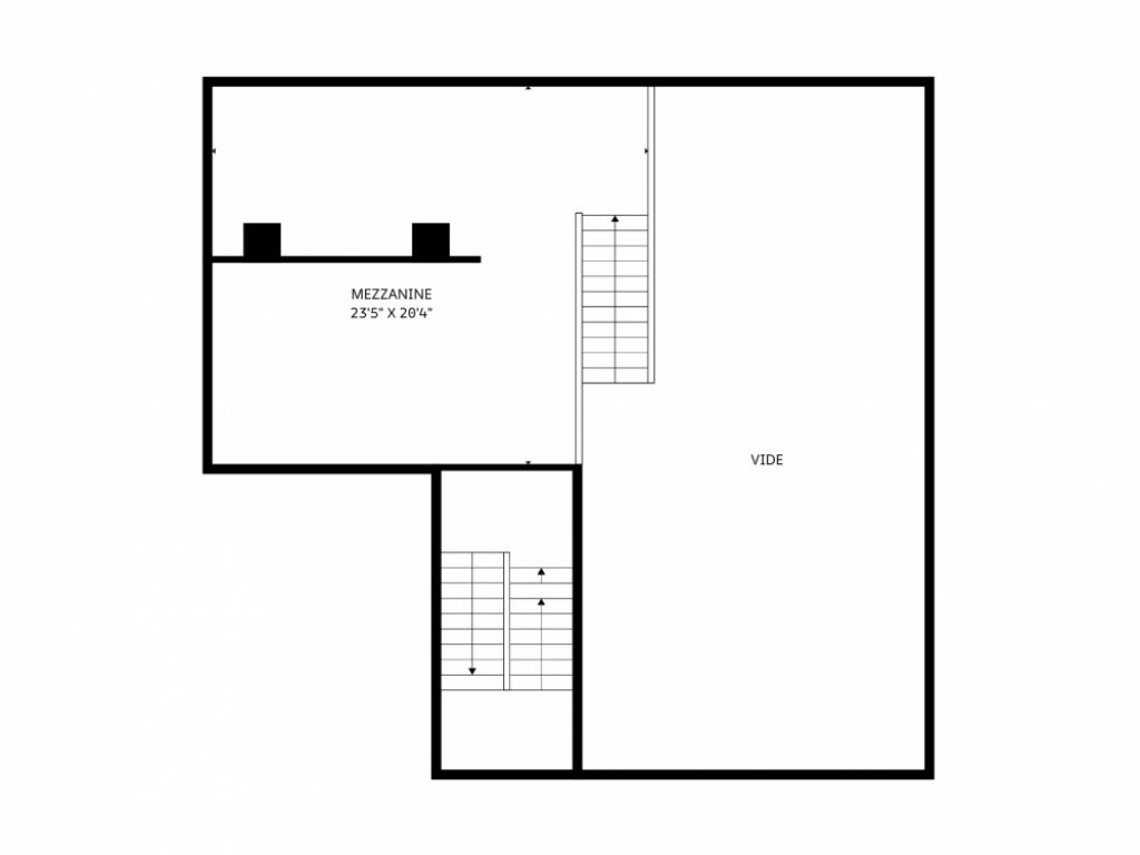
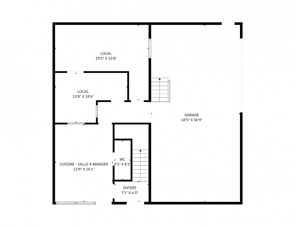
Espace industriel idéal pour vos besoins d’affaires. Cette unité est répartie par 1 368 pi² d’industriel, complétée par une mezzanine de 429 pi² et un deuxième étage de 1 353 pi², offrant une configuration fonctionnelle et polyvalente.

L’aménagement récent garantit un espace moderne et accueillant, avec une luminosité abondante au deuxième étage, parfaite pour créer un environnement de travail agréable.

De plus, l’unité inclut quatre espaces de stationnement privé, un système de sécurité, une douche, un atout précieux pour vos employés et visiteurs.


Détails de la propriété

Loyer brut : 22 $ / pi ca
Date de disponibilité : Maintenant