Opportunité exceptionnelle de sous-location - À louer
| Numéro de l'annonce | 8611 |
|---|---|
| ID | N/D |
| Prix | 32,00$/ pied carré |
| Pièces | 0 |
| Type | Bureaux |
| Catégorie | N/D |
| Taille du lot | - |
|---|---|
| Année de construction | - |
| Superficie | 6 016,00pi2 |
| Étages | 0 |
| Stationnement | - |
| Sous-location? | Non |
| Fiche 1 | Télécharger |
|---|
Description
Faits saillants
Le 90 rue Beaubien Ouest représente une occasion unique pour les entreprises cherchant à s’établir dans un environnement à la fois innovant et créatif.
À proximité de la Petite Italie, entre le boulevard Saint-Laurent et l’avenue du Parc, cet immeuble polyvalent combine le charme industriel à des espaces modernes et flexibles, parfaits pour répondre aux besoins des entreprises en pleine croissance et pour attirer des talents de qualité.
L’immeuble se distingue par un environnement stimulant, entouré d’entreprises œuvrant dans les secteurs de la technologie, du design et des médias.
De plus, il est facilement accessible grâce aux stations de métro De Castelnau et Parc, ainsi qu’au nouveau sentier moderne issu du projet de revitalisation urbaine de la ville de Montréal.
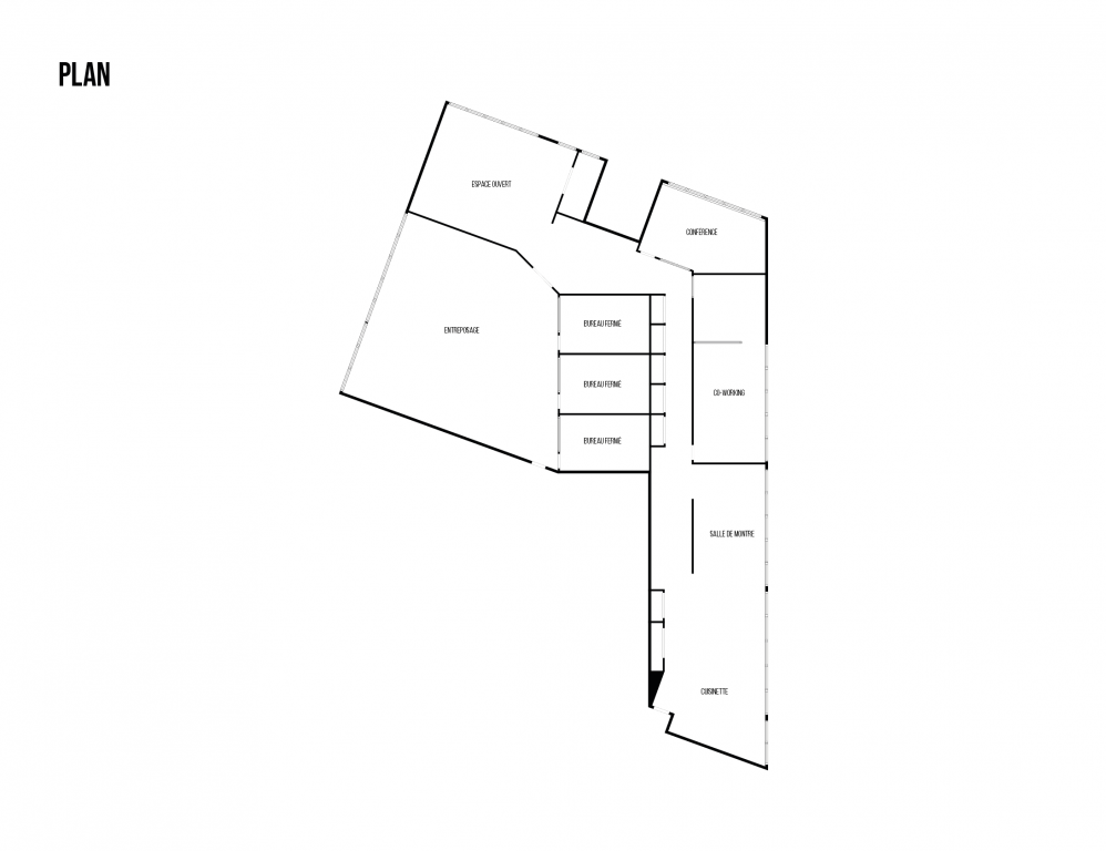
Le local en sous-location, situé au 5e étage, offre une fenestration sur trois côtés avec une vue imprenable sur le mont Royal.
Entièrement rénové et aménagé de façon stratégique et moderne, cet espace est une véritable invitation : une visite suffit pour vous convaincre !
L’immeuble propose également des commodités de qualité :
- Un hall d’entrée élégant avec accès à deux ascenseurs.
- Des salles de bains communes modernes à chaque étage.
- Un quai de chargement.
- Un vaste stationnement extérieur.
Détails de la propriété
Loyer brut annuel : 32.00 $ / pi.ca
Loyer mensuel : 16 042 $ + TPS/TVQ
Date de disponibilité : 30 jours APRÈS signature de bail






