Condo commercial - À louer

Numéro de l'annonce 8624
ID N/D
Prix 26,00$/ pied carré
Pièces 0
Type Bureaux
Catégorie N/D
Taille du lot -
Année de construction 1986
Superficie 3 380,00pi2
Étages 2
Stationnement 13 stationnements
Sous-location? Non

Description

Condo commercial idéal pour professionnels. Vaste rez-de-chaussée vous permettant d'accueillir vos équipes de travail ou collaborateurs sur un même plancher. Local adapté pour le coworking entièrement équipé de serrures intelligentes avec gestion des accès, de thermostats intelligents et d'une borne de réception virtuelle. 
Rez-de-chaussée de grande dimension (3380 pieds carrés) comportant 10 bureaux fermés et tous fenestrés, une salle coworking, une salle client, une salle à manger, une grande réception ajoutant un poste de travail supplémentaire, 2 salles de bains indépendantes à l'étage.
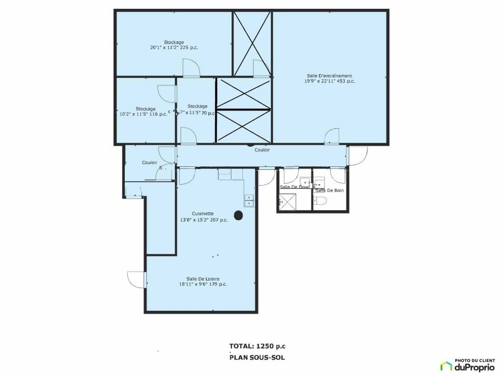
L'unité bénéficie d'un sous-sol entièrement aménagé ajoutant 1250 p.c. de superficie. Il comporte une salle d'entraînement avec douche et salle de bain adjacente, une salle loisirs/cuisinette, 3 espaces de rangements dont deux grandes voûtes antifeu/murs de bloc de bétons idéal pour notaire ou autres besoins. 
Les 13 cases de stationnement appartenant à l'unité permettent de fournir une place de stationnement pour chacun des bureaux de l'unité et même davantage. De plus, le stationnement est permis directement devant la bâtisse dans la rue, ce qui permet à la clientèle de ne jamais avoir à chercher de stationnements. Accès faciles aux grands axes routiers, au Metro Longueuil et transports en commun.

Caractéristiques

  • Air Climatisé
  • Améliorations
  • Cafétéria/cuisine
  • Chauffage
  • Electricité
  • Renové
  • Salles de conférence
  • Salles de toilette
  • Stationnement
  • Système d’alarme
  • Taux net/brut
  • Taxes et frais d’opérations
  • Transport en commun