ESPACE COMMERCIAL à LOUER - À louer

Numéro de l'annonce 8906
ID N/D
Prix 14 525,00$/ mois
Pièces 0
Type Bureaux
Catégorie N/D
Taille du lot -
Année de construction -
Superficie 3 873,00pi2
Étages 0
Stationnement -
Sous-location? Non

Description

Construit en 1933, cet immeuble de style néo-classique / Beaux-Arts, autrefois occupé par la Banque d’Épargne de la Cité et du District, est un bâtiment classé patrimonial. 

Il se distingue par sa façade monumentale, son horloge d’origine, son fronton décoratif et ses colonnes emblématiques de l’architecture bancaire historique du boulevard SaintLaurent.

Après le départ de la banque en 2000, l’immeuble a été utilisé comme salle événementielle, notamment par le Sporting Club, le Club Lambi et le Skills.

Situé à l’angle stratégique du boulevard SaintLaurent et de l’avenue MontRoyal, entre Le Chaînon et le bar Belmont, il bénéficie d’un achalandage exceptionnel.

Le secteur est l’un des plus fréquentés du PlateauMontRoyal, reconnu pour sa mixité commerciale, résidentielle et culturelle.

Il est bordé de commerces, restaurants, bars, galeries et accueille chaque année des événements majeurs tels que le festival MURAL.

L’accessibilité est excellente, grâce au bus 55 et à la station de métro MontRoyal.



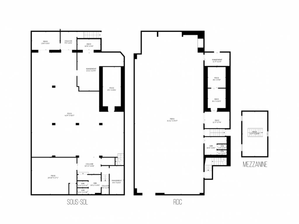
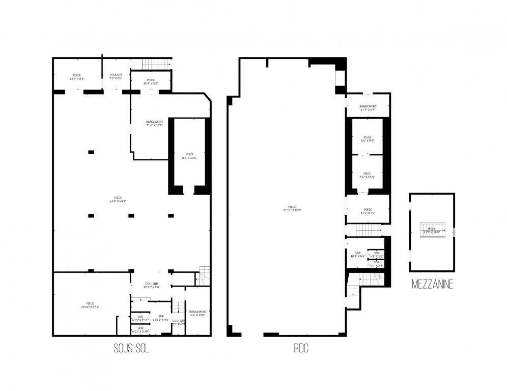
Local commercial en structure de béton réparti sur deux étages, avec une mezzanine à usage de bureaux.

Superficie totale de 6 393 pi², incluant 3 127 pi² au rez-de-chaussée, 241 pi² en mezzanine et 3 025 pi² au sous-sol. La superficie locative est de 3 873 pi².

Le rez-de-chaussée propose une hauteur libre de 15 pieds, une vitrine pleine largeur sur le boulevard Saint-Laurent, un système central de climatisation et de chauffage, ainsi que deux salles de bain (RDC et sous-sol).

Le local comprend également deux voûtes : l’une au rez-de-chaussée, aménagée par l’ancien locataire avec un évier en stainless de type commercial pour un usage de bar-service, et l’autre au sous-sol, laissée brute à des fins d’entreposage.

Le sous-sol, de pleine hauteur, a déjà été utilisé comme salle de spectacle. Il convient parfaitement à des usages de type speakeasy, salle de sport, entrepôt, studio ou espace événementiel.

L’immeuble comprend un accès arrière pour les issues de secours et la gestion des déchets.

Situé entre Le Chaînon et le bar Belmont, l’emplacement assure une visibilité optimale au coin de deux artères majeures.