🏢 Suite de bureaux à louer en colocation professionnelle | Boisbriand - Espace à louer
| Numéro de l'annonce | 8924 |
|---|---|
| ID | N/D |
| Prix | 3 000,00$/ mois |
| Pièces | 0 |
| Type | Bureaux |
| Catégorie | N/D |
| Taille du lot | - |
|---|---|
| Année de construction | - |
| Superficie | - |
| Étages | 0 |
| Stationnement | oui |
| Sous-location? | Oui |
Description
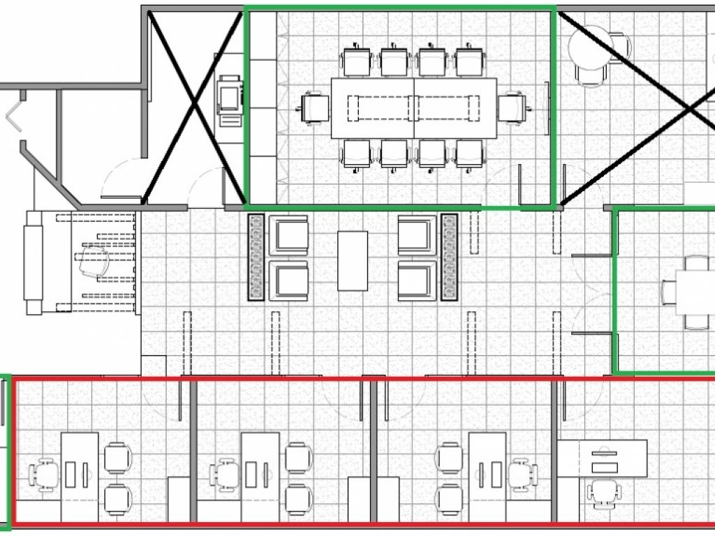
Vous êtes une petite entreprise ou un collectif de professionnels à la recherche d’un espace inspirant pour vous installer?
Nous offrons la sous-location d’une suite complète incluant plusieurs bureaux fermés en colocation avec Évolupharma, dans un espace moderne et bien aménagé.
Ce qui est inclus dans la suite :
🏢 3 bureaux individuels fermés (10 x 12 pi)
🏢 1 bureau double (10 x 18 pi)
👥 1 bureau d’accueil à la réception
🧑🏫 2 salle de conférence / formation sur réservation
🍽️ Cuisinette équipée
📶 Wi-Fi, adresse postale, cafétéria d’immeuble accessible
🎯 Emplacement stratégique à Boisbriand :
📍 1919, Lionel-Bertrand, Suite 107, Boisbriand
💼 Parfait pour une entreprise en démarrage, un regroupement de professionnels ou une organisation hybride.
💬 Écrivez-moi pour visiter ou discuter des modalités. Tarifs avantageux selon vos besoins.
Vous êtes une petite entreprise ou un collectif de professionnels à la recherche d’un espace inspirant pour vous installer?
Nous offrons la sous-location d’une suite complète incluant plusieurs bureaux fermés en colocation avec Évolupharma, dans un espace moderne et bien aménagé.
Ce qui est inclus dans la suite :
🏢 3 bureaux individuels fermés (10 x 12 pi)
🏢 1 bureau double (10 x 18 pi)
👥 1 bureau d’accueil à la réception
🧑🏫 2 salle de conférence / formation sur réservation
🍽️ Cuisinette équipée
📶 Wi-Fi, adresse postale, cafétéria d’immeuble accessible
🎯 Emplacement stratégique à Boisbriand :
📍 1919, Lionel-Bertrand, Suite 107, Boisbriand
💼 Parfait pour une entreprise en démarrage, un regroupement de professionnels ou une organisation hybride.
💬 Écrivez-moi pour visiter ou discuter des modalités. Tarifs avantageux selon vos besoins.
Caractéristiques
- Air Climatisé
- Cafétéria/cuisine
- Chauffage
- Electricité
- Proximité des autoroutes
- Renové
- Stationnement






