Local commercial/industriel - Château-Richer - À louer
| Numéro de l'annonce | 8964 |
|---|---|
| ID | N/D |
| Prix | - |
| Pièces | 0 |
| Type | Édifice commercial |
| Catégorie | N/D |
| Taille du lot | - |
|---|---|
| Année de construction | - |
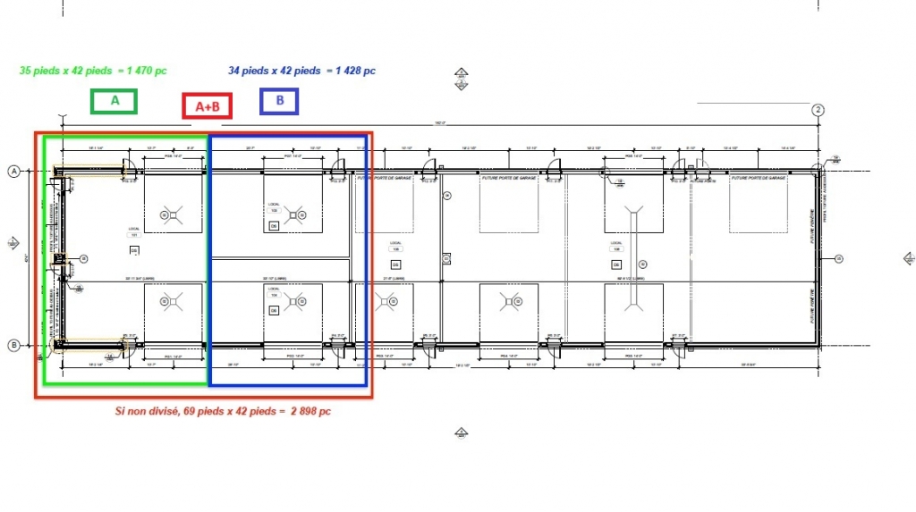
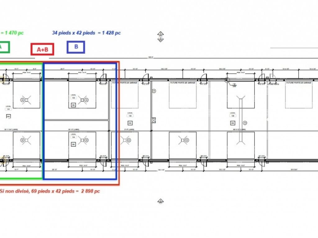
| Superficie | 2 898,00pi2 |
| Étages | 0 |
| Stationnement | Disponibles |
| Sous-location? | Non |
Description
Dans un immeuble qui est en façade du boulevard Sainte-Anne, ce local à vocation commerciale et industrielle se distingue par ses hauts plafonds, ses 4 grandes portes de garage et sa façade vitrée contemporaine, qui assurent à la fois une luminosité abondante et une visibilité remarquable sur le boulevard Sainte-Anne (route 138), un axe très fréquenté reliant Québec à la Côte-de-Beaupré.
Avec une superficie totale d’environ 2 898 p.c., est également divisible en deux sections indépendantes :
La partie A (environ 1 470 p.c.) et la partie B (environ 1 428 p.c.). Cette configuration modulable permet une grande flexibilité, s’adaptant parfaitement aux besoins d’entreprises recherchant à la fois fonctionnalité et visibilité dans un bâtiment moderne.
La grande fenestration en façade assure une belle luminosité naturelle, tout en maximisant la visibilité sur le boulevard Sainte-Anne (route 138), un axe routier achalandé reliant Québec à la Côte-de-Beaupré.
En somme, ce local combine fonctionnalité, flexibilité et visibilité dans un bâtiment moderne, idéal pour un entrepôt, une salle de montre ou un atelier industriel.
Fonctionnalités
Superficie totale d’environ 2 898 p.c.
Divisible en 2 parties
Plafonds très hauts permettant un grand dégagement
4 grandes portes de garage (2 par section)
Grande fenestration en façade offrant luminosité et visibilité commerciale
Affichage possible dans le pylône
Il a comme avantage les points suivants
Local modulable : possibilité de louer l’ensemble ou une seule section
Bâtiment récent et moderne
Accès facile pour la manutention et les livraisons
Bonne visibilité sur un axe routier achalandé
Secteur intéressant pour :
Situé directement sur le boulevard Sainte-Anne (route 138)
À proximité de Boischatel, Beaupré et Sainte-Anne-de-Beaupré
Accès rapide à la région de Québec
Secteur en développement offrant un bon potentiel commercial
Ce n’est pas le local idéal ?
Contactez nous, plusieurs locaux ne sont pas affichés
Chez Location BCI, nous sommes spécialisés dans la location de locaux commerciaux adaptés aux besoins de votre entreprise. Que vous soyez à la recherche d’un local à louer, d’un bureau à louer, ou d’un local industriel à louer, notre équipe professionnelle est là pour vous accompagner et cela rapidement.
Si le local que vous consultez ne correspond pas parfaitement à vos attentes, pas de souci! Nous mettons tout en œuvre pour trouver le meilleur espace pour votre entreprise grâce à notre expertise, notre réseau et notre rapidité d’action.
Notre mission est simple : vous offrir un service personnalisé, efficace et axé sur vos besoins spécifiques, afin de garantir une expérience de location fluide et sans tracas. Avec Location BCI, vous avez la certitude de collaborer avec une agence professionnelle qui comprend l’importance d’un local parfaitement adapté à votre réussite.
Contactez-nous dès aujourd’hui pour explorer nos options de locaux commerciaux à louer à Québec et laissez-nous vous guider vers l’espace idéal pour votre entreprise.
Caractéristiques
- Stationnement






