Loft / atelier / bureau lumineux -1947 pi.ca. à sous-louer - Sous-location

Numéro de l'annonce 8994
ID N/D
Prix 3 650,00$/ mois
Pièces 0
Type Loft / Studio
Catégorie N/D
Taille du lot -
Année de construction -
Superficie 1 947,00pi2
Étages 0
Stationnement Possibilité de louer une case de stationnement
Sous-location? Oui

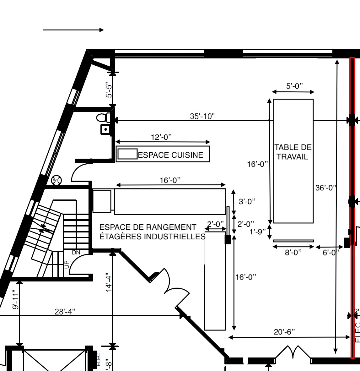
Description

Loft très fenestré avec vue sur la verdure de la voie ferrée. Idéal pour bureau créatif, atelier ou petite entreprise.

Caractéristiques:

- Superficie: 1947 pi.ca.

- Salle de toilette privée

- Espace de rangement avec étagères industrielles (peuvent être incluses)

- Grande table de travail (peut être incluse)

-Èlectricité refaite à neuf

- Chauffage inclus +taxes d'affaires (ajustement au printemps)

Avantages de l'immeubleL

- Quai de déchargement et monte-charge

- Hauts plafonds - structure tout béton

- Gicleurs et système d'alarme

 

- Disponible dès octobre, bail transférable suite à l'approbation du crédit par les Lofts Cadbury

Caractéristiques

  • Améliorations
  • Cafétéria/cuisine
  • Chauffage
  • Commodités/Aménagement/Équipement
  • Disponibilité
  • Electricité
  • Espacement des colonnes
  • Gicleurs
  • Hauteur libre (plafond)
  • Livraison/Expédition
  • Quai de chargement
  • Renové
  • Salles de toilette
  • Stationnement
  • Système d’alarme
  • Transport en commun
  • Vue