Technopôle Angus Magnifique espace partagé de 2522 pi ca - À louer
| Numéro de l'annonce | 9060 |
|---|---|
| ID | N/D |
| Prix | 5 500,00$/ mois |
| Pièces | 0 |
| Type | Bureaux |
| Catégorie | A |
| Taille du lot | - |
|---|---|
| Année de construction | - |
| Superficie | 2 522,00pi2 |
| Étages | 2 |
| Stationnement | Extérieur public |
| Sous-location? | Oui |
Description
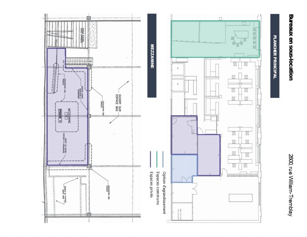
Localisé dans le quartier des Shops Angus, 2522 pi ca en sous-location à l'intérieur d'un espace privatif ou vous aurez accès à une cuisine et des salles de conférences communes. Bâtiment avec certification LEED à proximité de nombreux commerces et services. Service de sécurité 24h/24h. Aire de livraison disponible avec monte-charge. Huit (8) bornes de recharge pour voitures électriques. Support à vélo à l'intérieur et station BIXI dont une électrique disponible ($).
Échéance du bail : 30 novembre 2028 / Loyer brut / Électricité inclus / Entretien ménager inclus
Caractéristiques
- Air Climatisé
- Bâtiment LEED
- Cafétéria/cuisine
- Quai de chargement
- Renové
- Salles de conférence
- Système d’alarme
- Transport en commun






