Local Commercial À Louer Longueuil (Saint-Hubert) - À louer

Numéro de l'annonce 9166
ID N/D
Prix -
Pièces 0
Type Commerce (rue)
Catégorie N/D
Taille du lot -
Année de construction 2020
Superficie 2 000,00pi2
Étages 1
Stationnement OUI
Sous-location? Non

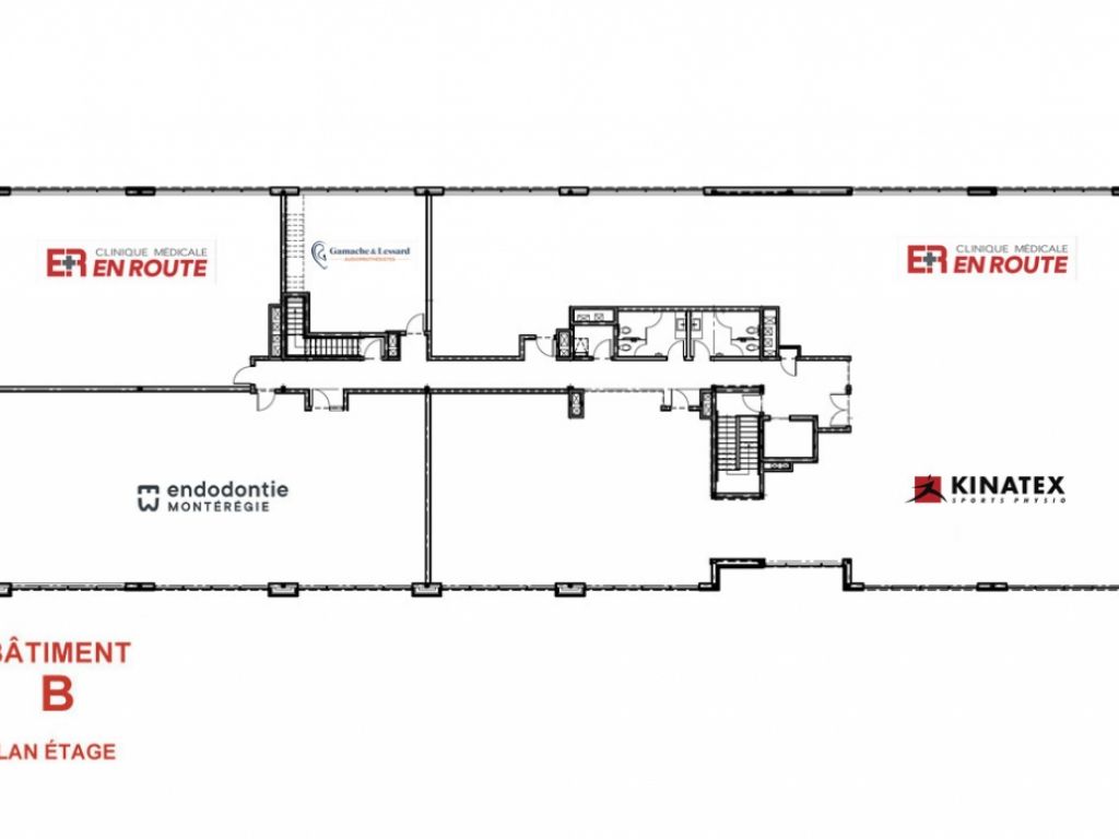
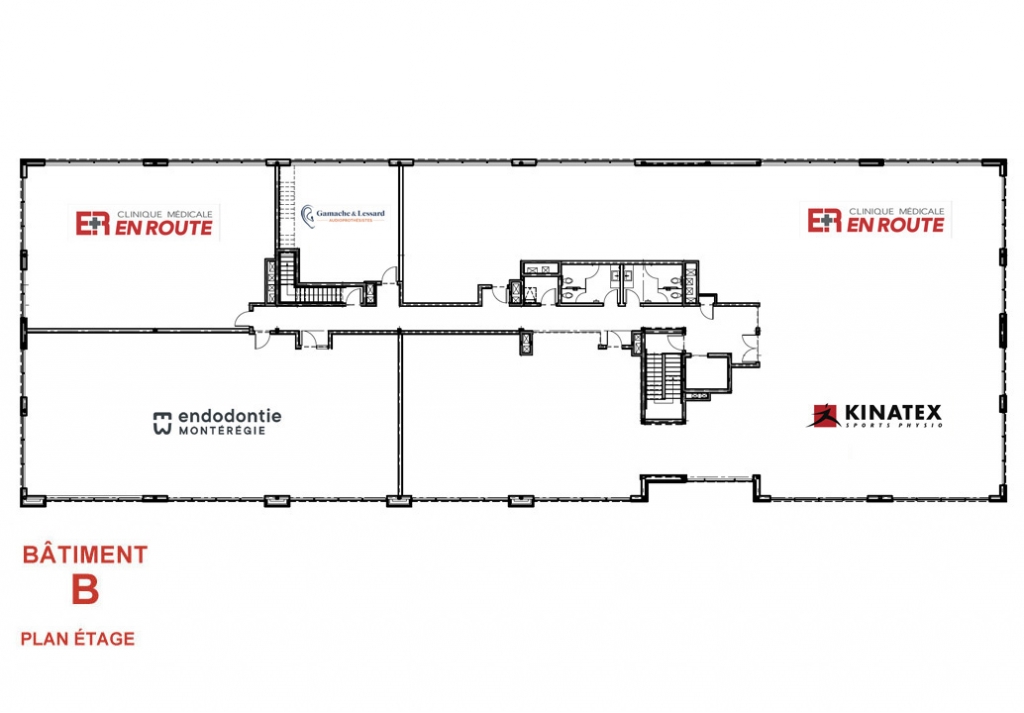
Description

Local préaménagé, nécessitant uniquement des travaux mineurs pour être opérationnel.

Venez vous établir au cœur de la seule zone commerciale du Faubourg Cousineau, stratégiquement située à l’intersection de l’autoroute 30 et du boulevard Cousineau. Ce secteur dynamique et en pleine croissance dessert une population de plus de 15 000 résidents.

À proximité immédiate de plusieurs commerces reconnus, dont Canac, Couche-Tard, Kinatex, la Clinique Médicale En-Route, et bien d’autres. Le Pôle commercial Cousineau bénéficie d’un accès direct à des axes routiers très achalandés, avec une circulation estimée à 36 000 véhicules par jour sur le boulevard Cousineau et 90 000 véhicules par jour sur l’autoroute 30.

Caractéristiques

  • Air Climatisé
  • Ascenseur
  • Bâtiment LEED
  • Chauffage
  • Disponibilité
  • Electricité
  • Gicleurs
  • Hôpital
  • Livraison/Expédition
  • Proximité des autoroutes
  • Renové
  • Salles de toilette
  • Stationnement
  • Système d’alarme
  • Taxes et frais d’opérations
  • Transport en commun