Espace de bureau à louer en 2e étage – 3700 Hamel - Local 100 – Les Saules - Espace à louer
| Numéro de l'annonce | 9304 |
|---|---|
| ID | N/D |
| Prix | 123 456,00$/ - |
| Pièces | 0 |
| Type | Bureaux |
| Catégorie | N/D |
| Taille du lot | - |
|---|---|
| Année de construction | - |
| Superficie | 1 617,00pi2 |
| Étages | 2 |
| Stationnement | Disponibles |
| Sous-location? | Non |
Description
Espace de bureau à louer en 2e étage – Local 100 – Les Saules
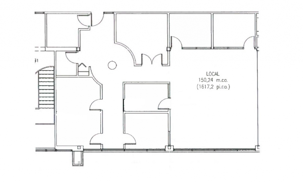
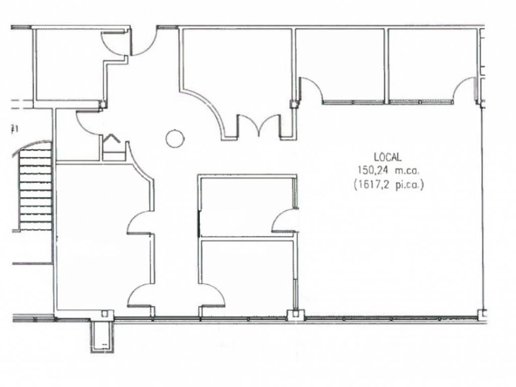
Situé au 3700 boulevard Wilfrid-Hamel, local 100, Québec, cet espace de bureau d’environ 1 617 pi², au 2e étage, propose une configuration particulièrement bien pensée, idéale pour une entreprise souhaitant combiner travail collaboratif et espaces privés.
Dès l’entrée, le local s’organise autour d’un hall central fonctionnel, menant vers une grande aire ouverte lumineuse. Cet espace constitue un environnement parfait pour l’installation de postes de travail, une zone de réception élargie ou un espace collaboratif dynamique favorisant les échanges entre équipes.
Autour de cette aire principale se déploient plusieurs bureaux fermés, offrant des zones calmes pour le travail individuel, les rencontres confidentielles ou les fonctions de gestion. Cette disposition permet une séparation naturelle entre les activités nécessitant de la concentration et celles orientées vers la collaboration.
Le local comprend également une salle de conférence fermée, idéale pour les réunions d’équipe ou les présentations clients, ainsi qu’une cuisinette pratique pour les pauses et le confort des employés. Un espace de rangement complète l’aménagement, ajoutant une fonctionnalité supplémentaire au quotidien.
L’ensemble de la configuration offre une circulation fluide, une excellente polyvalence et une grande facilité d’adaptation selon les besoins spécifiques du locataire. Que ce soit pour une firme de services, une entreprise en croissance ou une équipe professionnelle, ce local propose un environnement de travail structuré et efficace.
Implanté sur le boulevard Wilfrid-Hamel, un axe majeur de Québec, l’immeuble bénéficie d’une accessibilité optimale et d’une proximité avec plusieurs services, commerces et axes routiers.
Ce local représente une opportunité idéale pour une entreprise recherchant un espace complet, bien organisé et prêt à soutenir sa croissance.
Fonctionnalités
Le local est clef en main pour un espace de bureau
Quelques bureaux fermés
Cuisinette ou salle de conférence
Il a comme avantage les points suivants
Zone de stationnement facile pour le locataire
Prise de possession rapide possible
Secteur Les Saules de la ville
Secteur intéressant pour :
Proximité de l’autoroute Henri-IV (73)
Proximité de L’autoroute Capitale
Proximité de l’autoroute Robert-Bourassa
Grille de zonage :
https://carte.ville.quebec.qc.ca/GrillesZonage/HandlerZonage.ashx?22220Mb
Ce n’est pas le local idéal ?
Contactez nous, plusieurs locaux ne sont pas affichés
Chez Location BCI, nous sommes spécialisés dans la location de locaux commerciaux adaptés aux besoins de votre entreprise. Que vous soyez à la recherche d’un local à louer, d’un bureau à louer, ou d’un local industriel à louer, notre équipe professionnelle est là pour vous accompagner et cela rapidement.
Si le local que vous consultez ne correspond pas parfaitement à vos attentes, pas de souci! Nous mettons tout en œuvre pour trouver le meilleur espace pour votre entreprise grâce à notre expertise, notre réseau et notre rapidité d’action.
Notre mission est simple : vous offrir un service personnalisé, efficace et axé sur vos besoins spécifiques, afin de garantir une expérience de location fluide et sans tracas. Avec Location BCI, vous avez la certitude de collaborer avec une agence professionnelle qui comprend l’importance d’un local parfaitement adapté à votre réussite.
Contactez-nous dès aujourd’hui pour explorer nos options de locaux commerciaux à louer à Québec et laissez-nous vous guider vers l’espace idéal pour votre entreprise.
Caractéristiques
- Disponibilité
- Stationnement
- Transport en commun






