Restaurant clé en main à Victoriaville - À louer
| Numéro de l'annonce | 5510 |
|---|---|
| ID | N/D |
| Prix | 25,00$/ pied carré |
| Pièces | 0 |
| Type | Commerce (rue) |
| Catégorie | N/D |
| Taille du lot | - |
|---|---|
| Année de construction | - |
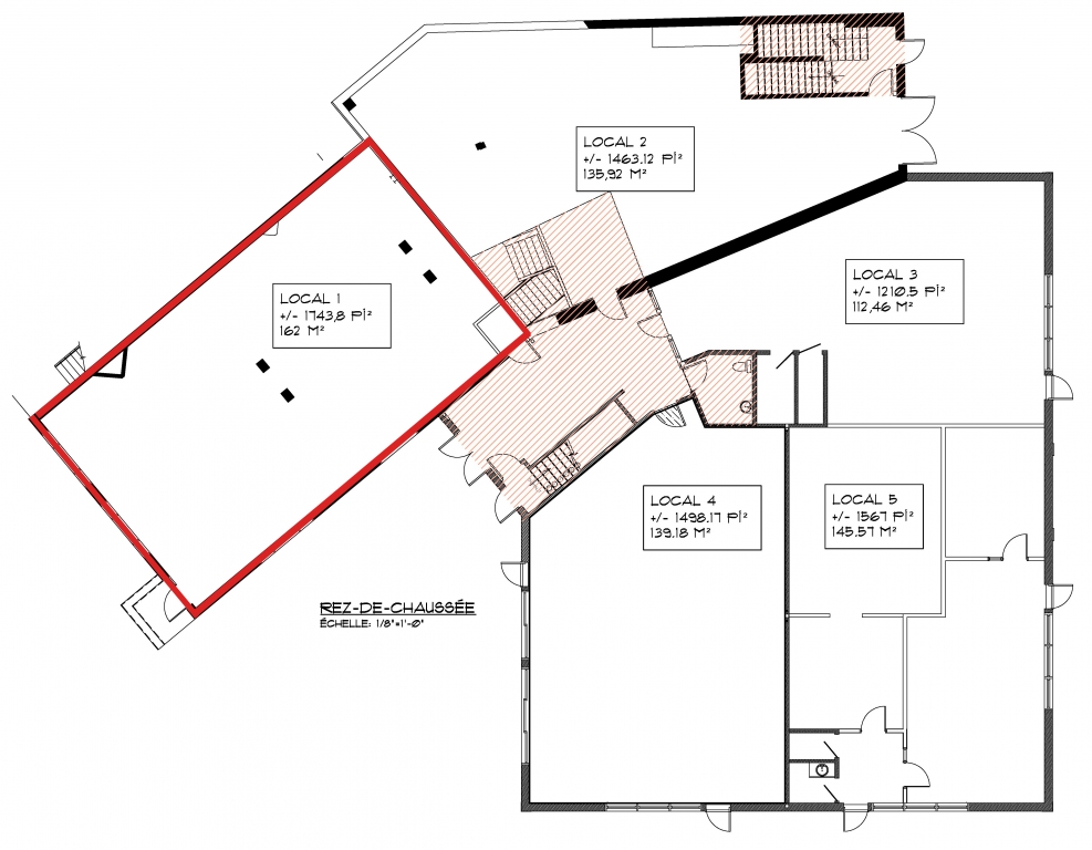
| Superficie | 1 744,00pi2 |
| Étages | 0 |
| Stationnement | - |
| Sous-location? | Non |
| Fiche 1 | Télécharger |
|---|
Description
Restaurant clé en main situé en plein cœur du centre-ville de Victoriaville, idéal pour une franchise, avec permis d'alcool disponible.
3 portes de garages donnant accès à deux espaces terrasses privées.
Sous-sol complet donnant accès à un espace bureau, entreposage, walk in frigidaire, salle de bain, etc.
Emplacement stratégique offrant une visibilité unique, situé derrière le cégep de Victoriaville et du Colisée des Bois-Franc.
Voisin du restaurant / bar le Cactus et de Pizza Salvatoré.
Stationnement en abondance.
Installations
Lignes de propane
Trappe à graisse
Hotte à cuisson ( +/- 12 pieds)
Walk-in frigidaire
Lignes de bières amenées au sous-sol
Tank à eau chaude
Loyer : 25 $ / pi.ca
Frais d'opération : 3.66 $ / pi.ca (estimé 2020)
Terme : 5 / 10 ans
Électricité : au compteur
Disponibilité : immédiate
Cet emplacement ne répond pas tout à fait à vos besoins? Contactez-nous dès maintenant et il nous fera plaisir de vous assister gratuitement afin de vous trouver un local qui vous convient parfaitement.
-KW Commercial
Caractéristiques
- Commodités/Aménagement/Équipement
- Disponibilité
- Proximité des autoroutes
- Salles de toilette
- Transport en commun






